Appartement te koop in Torrevieja – Dicht bij het centrum

Ref.: TO-CE-A23
34m2
1
1
Gemeenschappelijk

Beschrijving

Appartement te koop in Torrevieja – Dicht bij het centrum

Appartement te koop in Torrevieja, gelegen vlak bij het stadscentrum en naast Colegio La Inmaculada. De woning heeft een praktische ligging met alle dagelijkse voorzieningen op loopafstand.

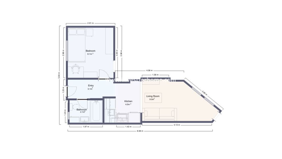
Het appartement beschikt over 1 slaapkamer en 1 badkamer, met een totale oppervlakte van 33 m². Het bevindt zich op de derde verdieping van een gebouw met lift en gemeenschappelijk zwembad.

De woning verkeert in goede staat en wordt verkocht zoals te zien is op de foto’s, klaar voor gebruik of verhuur.

Dankzij de centrale ligging zijn winkels, restaurants en alle voorzieningen gemakkelijk bereikbaar.

Lees meer

Belangrijke informatie

Slaapkamers: 1
Badkamers: 1
Bebouwd: 34m2
Woonkamer: 11m2
Ingebouwde kasten: 2
Energy Rating: In aanvraag
Oriëntering: Oosten
Afstand naar het strand: 5 Mins.
Afstand naar vliegveld: 45 Km.
Afstand tot commercieel centrum: 2 Mins.
Afstand tot golfterrein: 15 Km.

Kenmerken

Afzuigkap
Aluminium ramen
Dubbele beglazing
Gemeubeld
Intercom
Koelkast
Lift
Open keuken
Optische glasvezel internet
Rolluiken
Wasmachine
Energie beoordeling
Energie beoordeling:
In aanvraag

Plaats

Economie

Deze informatie is hier onderhevig aan fouten en maakt geen deel uit van een contract. De aanbieding kan zonder kennisgeving worden gewijzigd of ingetrokken. Prijzen zijn exclusief aankoopkosten.

Bereken hypotheken

Wisselkantoor

  • Pounds: 74.093 GBP
  • Russische roebel: 74.093 RUB
  • Zwitserse frank: 78.464 CHF
  • Chinese yuan: 684.106 CNY
  • Dollar: 100.275 USD
  • Zweedse kroon: 918.255 SEK
  • De Noorse kroon: 936.445 NOK

Neem contact met ons op

Responsable del tratamiento: Invest for Home, Finalidad del tratamiento: Gestión y control de los servicios ofrecidos a través de la página Web de Servicios inmobiliarios, Envío de información a traves de newsletter y otros, Legitimación: Por consentimiento, Destinatarios: No se cederan los datos, salvo para elaborar contabilidad, Derechos de las personas interesadas: Acceder, rectificar y suprimir los datos, solicitar la portabilidad de los mismos, oponerse altratamiento y solicitar la limitación de éste, Procedencia de los datos: El Propio interesado, Información Adicional: Puede consultarse la información adicional y detallada sobre protección de datos Aquí.

© 2026 Invest for Home · Colofon · Privacy · Cookies · Web plan

WhatsApp